243 Lamarche Avenue Ottawa, Ontario K1W 0M5

2 Bedroom 2 Bathroom 900 - 999 sqft
Central Air Conditioning Forced Air

$2,150 Monthly

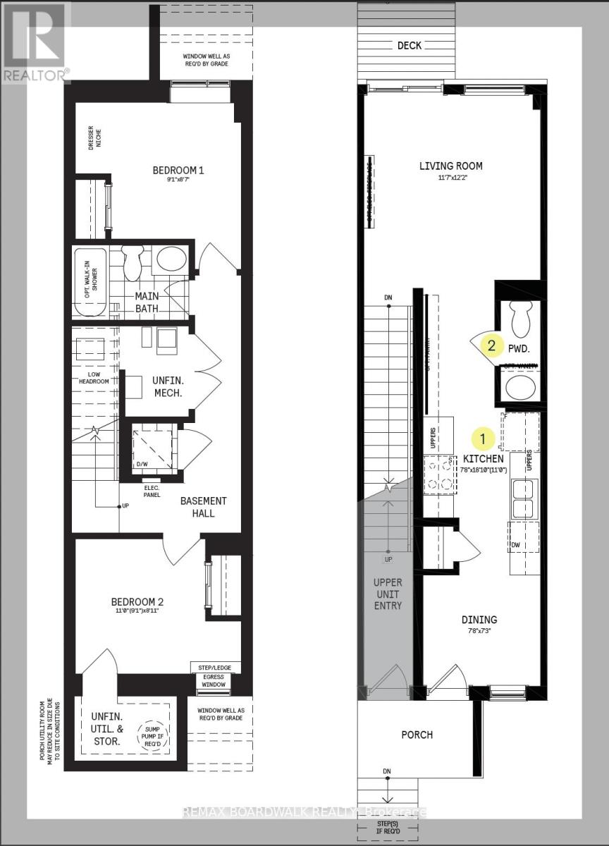
Brand New, Never Lived In! Bright 2-bedroom, 1.5-bathroom lower stacked condo by Caivan with 900 sq ft of living space. Two bedrooms and a full bathroom with a tub/shower combo complete the lower level with laundry, while an open-concept kitchen, living, dining, and powder room shine upstairs. Front and rear yard access which is convenient for groceries. Enjoy all that Orléans Village has to offer, from walking paths and a recreation complex to easy access to transit, Highway 417, shops, and restaurants. Available June 1st! (id:49712)

Property Details

MLS® Number X12965852
Property Type Single Family
Community Name 2012 - Chapel Hill South - Orleans Village
Amenities Near By Park, Public Transit, Schools
Community Features Pets Not Allowed, Community Centre
Equipment Type Water Heater, Water Heater - Tankless
Features In Suite Laundry
Parking Space Total 1
Rental Equipment Type Water Heater, Water Heater - Tankless

Building

Bathroom Total 2
Bedrooms Below Ground 2
Bedrooms Total 2
Age New Building
Amenities Visitor Parking
Appliances Water Heater, Dishwasher, Dryer, Stove, Washer, Refrigerator
Basement Type None
Cooling Type Central Air Conditioning
Exterior Finish Stone, Vinyl Siding
Half Bath Total 1
Heating Fuel Natural Gas
Heating Type Forced Air
Size Interior 900 - 999 Sqft
Type Row / Townhouse

Parking

No Garage

Land

Acreage No
Land Amenities Park, Public Transit, Schools

Rooms

Level Type Dimensions
Lower Level Bedroom 2.77 m x 2.65 m
Lower Level Bedroom 2 3.35 m x 2.47 m
Main Level Dining Room 2.37 m x 2.22 m
Main Level Kitchen 2.37 m x 5.51 m
Main Level Living Room 3.56 m x 3.71 m

https://www.realtor.ca/real-estate/29566267/243-lamarche-avenue-ottawa-2012-chapel-hill-south-orleans-village

Schedule a Tour

Complete the form below to submit a tour request for this listing.

Schedule a Tour

Complete the form below to submit a tour request for this listing.

Schedule a Tour

Complete the form below to submit a tour request for this listing.

Request More Info About This Listing

Complete the form below to request more info about this listing.